646円
フェイスネットワークのニュース
不動産投資支援事業を展開するフェイスネットワーク 奥沢の街並みを豊かにし街の魅力を高める賃貸マンション『GranDuo(グランデュオ)奥沢』が完成!
東京の城南3区エリア(世田谷区、目黒区、渋谷区)を中心に、主に新築一棟RCマンションによる不動産投資支援事業を展開する株式会社フェイスネットワーク(本社:東京都渋谷区、代表取締役社長:蜂谷 二郎、以下 「当社」という。)は、『GranDuo(グランデュオ)奥沢』(東京都世田谷区、地上3階、地下1階建て 総戸数14戸)が2024年11月15日(金)に完成したことをお知らせいたします。

【『GranDuo奥沢』外観・内観】
本物件は、東急目黒線「奥沢」駅から徒歩9分、東急大井町線「緑が丘」駅から徒歩9分の奥沢エリアに位置し、第1種低層住宅地域と戸建住宅の多い閑静な住宅街に佇む物件となっています。
設計はHAN環境・建築設計事務所に依頼し、開発物件を含めた周辺敷地の住環境の向上や街並みを豊かにして街の魅力を高められるプランとしていただきました。落ち着きのある環境で子供から年配の方まで幅広い世代が暮らしやすいとされている奥沢の街並みの向上に寄与するデザインとなるよう、外装はシンプルながらもデザイン性を持たせています。
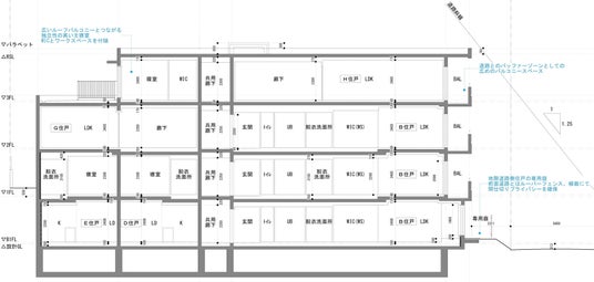
また、内装は“グレー×ベージュ”を基調とした落ちつきのある空間とし、各住戸約60平方メートル 前後の空間とオープンキッチンを合わせた開放的なLDKをご用意するとともに、主空間と収納またはワークスペースとしても利用できる空間を設けることで、多種多様な暮らし方が可能な住まいとなっています。
◆『GranDuo奥沢』特徴
◇街並みの向上に寄与するベーシックな佇まい

道路より一段上がった既存の擁壁を解体することにより、道路側の敷地と道路との高さを水平にいたしました。併せて、沿道は緑化を施し、緑の多い閑静な住宅街「奥沢」のさらなる街並みの向上に寄与することを企図しています。
また、戸建て住宅の多い街並みの中でシンプルかつベーシックな形態とし、1層を地階とすることにより、住宅街の落ち着いた佇まいを保つ計画としています。
◇街並みに溶け込むベーシックなファサードと分節されたボリューム

道路側のファサードは、沿道植樹帯を設け敷地の印象を和らげたうえで、タテとヨコのフレームを強調したベーシックなデザインとし、街並みの向上に寄与する意匠としています。また、第1種低層住宅地域と戸建住宅の多い街並みのリズムを損なわない様に、ボリュームを分節して視認性を高めるとともに、外装をチャコールグレーの左官仕上げとコンクリート打ち放し仕上げの2種類で構成することで、デザインの単調化を避ける計画としています。
◇敷地の特性を生かした住戸配置と各住戸に設置したオープンキッチン

東道路側には、1階は専用庭および沿道緑化など緑を楽しむ住戸、上階は東斜面の眺望を望む住戸を配置しています。敷地西側は、南採光2列の住戸の配置を基本とした構成とし、奥側のメゾネット住戸は現況の道路より1段上がった地盤面のままとして南北にドライエリアを設けることで、落ち着きかつ閉塞感の無い地階住戸となっています。
また、各住戸60平方メートル 程度の広めのプランで構成しており、西側奥地階の住戸は地階と1階のメゾネット住戸となっています。なお、「オープンキッチンをもつ広がりのあるLDK」をコンセプトとし、各住戸に約15~20帖のLDKを配置しています。
◆『GranDuo奥沢』物件概要
所在地 :東京都世田谷区奥沢1-22-22
アクセス :東急目黒線 奥沢 徒歩9分
東急大井町線 緑が丘 徒歩9分
構造 :鉄筋コンクリート造 地上3階、地下1階建
敷地面積 :594.84平方メートル
延床面積 :999.81平方メートル
設計・監理:HAN環境・建築設計事務所
建築・施工:小川建設株式会社
詳細情報 :https://faithnetwork.co.jp/project/p7583/
◆『GranDuo奥沢』賃貸情報
入居可能戸数 :14戸(1LDK×4戸、1SLDK×6戸、3LDK×2戸、2LDK×2戸)
賃貸専有面積 :住居/53.73平方メートル ~80.9平方メートル
敷金/礼金 :1ヶ月/なし(契約期間:2年間)
備考 :ペット相談可(小型犬~中型犬 または 猫2匹まで)
物件情報サイト:「3区MIRAIE」 https://3kumiraie.jp/rent/285
募集状況 :入居申込受付中(満室になり次第終了)
◆「HAN環境・建築設計事務所」について https://www.han-arc.com/
自然エネルギーを利用し建物の快適性を高めるパッシブデザインの視点より、近隣環境・微気候など敷地の特性を広く深く読み取り計画に取り入れることより、住まい手の健康やサステナビリティに配慮した建築の設計をコンセプトとする建築設計事務所。集合住宅・施設では敷地のポテンシャルを生かし、長期にわたり魅力的で収益性の高い建物にすることを大切にしています。都市のストックとして長期的視野を持つ質の高い建物を設計する事より、周辺敷地の住環境(気候・景観)の向上を目指すと共に、建物のライフサイクルコストの削減、長寿命化、省エネルギー化、自然素材や再生材の採用等、地域生態系への負荷の低減などの取り組みを行い、魅力的で持続性のある建物を創り上げていきます。

◆株式会社フェイスネットワークについて https://faithnetwork.co.jp
住みたい街として人気の東京 城南3区エリア(世田谷区、目黒区、渋谷区)を中心とした、主に新築一棟RCマンションによる不動産投資支援事業を展開。土地の仕入・設計・施工・物件販売から賃貸の入居者募集・物件管理に至るまで、全てを自社で管理するワンストップサービスを提供。独自ブランド「GranDuo(グランデュオ)」を展開している。現在までに合計250棟以上の新築一棟マンションをプロデュースし、城南3区エリアでの新築一棟RCマンション竣工棟数は No.1。((株)建設データバンクのデータを基に自社調べ (2024年9月末時点))
投資用不動産の活用を通じてオーナー様の夢の実現をサポートするとともに、デザインと居住性を両立させたマンション開発を通じて、城南3区エリアでの入居者様の理想のライフスタイルを叶え続けている。

住所 :東京都渋谷区千駄ヶ谷3-2-1 FaithBldg.
代表者 :代表取締役社長 蜂谷 二郎
事業内容 :不動産業/建設業/一級建築士事務所
証券コード:東証スタンダード市場3489

【『GranDuo奥沢』外観・内観】
本物件は、東急目黒線「奥沢」駅から徒歩9分、東急大井町線「緑が丘」駅から徒歩9分の奥沢エリアに位置し、第1種低層住宅地域と戸建住宅の多い閑静な住宅街に佇む物件となっています。
設計はHAN環境・建築設計事務所に依頼し、開発物件を含めた周辺敷地の住環境の向上や街並みを豊かにして街の魅力を高められるプランとしていただきました。落ち着きのある環境で子供から年配の方まで幅広い世代が暮らしやすいとされている奥沢の街並みの向上に寄与するデザインとなるよう、外装はシンプルながらもデザイン性を持たせています。
また、内装は“グレー×ベージュ”を基調とした落ちつきのある空間とし、各住戸約60平方メートル 前後の空間とオープンキッチンを合わせた開放的なLDKをご用意するとともに、主空間と収納またはワークスペースとしても利用できる空間を設けることで、多種多様な暮らし方が可能な住まいとなっています。
◆『GranDuo奥沢』特徴
◇街並みの向上に寄与するベーシックな佇まい

道路より一段上がった既存の擁壁を解体することにより、道路側の敷地と道路との高さを水平にいたしました。併せて、沿道は緑化を施し、緑の多い閑静な住宅街「奥沢」のさらなる街並みの向上に寄与することを企図しています。
また、戸建て住宅の多い街並みの中でシンプルかつベーシックな形態とし、1層を地階とすることにより、住宅街の落ち着いた佇まいを保つ計画としています。
◇街並みに溶け込むベーシックなファサードと分節されたボリューム

道路側のファサードは、沿道植樹帯を設け敷地の印象を和らげたうえで、タテとヨコのフレームを強調したベーシックなデザインとし、街並みの向上に寄与する意匠としています。また、第1種低層住宅地域と戸建住宅の多い街並みのリズムを損なわない様に、ボリュームを分節して視認性を高めるとともに、外装をチャコールグレーの左官仕上げとコンクリート打ち放し仕上げの2種類で構成することで、デザインの単調化を避ける計画としています。
◇敷地の特性を生かした住戸配置と各住戸に設置したオープンキッチン

東道路側には、1階は専用庭および沿道緑化など緑を楽しむ住戸、上階は東斜面の眺望を望む住戸を配置しています。敷地西側は、南採光2列の住戸の配置を基本とした構成とし、奥側のメゾネット住戸は現況の道路より1段上がった地盤面のままとして南北にドライエリアを設けることで、落ち着きかつ閉塞感の無い地階住戸となっています。
また、各住戸60平方メートル 程度の広めのプランで構成しており、西側奥地階の住戸は地階と1階のメゾネット住戸となっています。なお、「オープンキッチンをもつ広がりのあるLDK」をコンセプトとし、各住戸に約15~20帖のLDKを配置しています。
◆『GranDuo奥沢』物件概要
所在地 :東京都世田谷区奥沢1-22-22
アクセス :東急目黒線 奥沢 徒歩9分
東急大井町線 緑が丘 徒歩9分
構造 :鉄筋コンクリート造 地上3階、地下1階建
敷地面積 :594.84平方メートル
延床面積 :999.81平方メートル
設計・監理:HAN環境・建築設計事務所
建築・施工:小川建設株式会社
詳細情報 :https://faithnetwork.co.jp/project/p7583/
◆『GranDuo奥沢』賃貸情報
入居可能戸数 :14戸(1LDK×4戸、1SLDK×6戸、3LDK×2戸、2LDK×2戸)
賃貸専有面積 :住居/53.73平方メートル ~80.9平方メートル
敷金/礼金 :1ヶ月/なし(契約期間:2年間)
備考 :ペット相談可(小型犬~中型犬 または 猫2匹まで)
物件情報サイト:「3区MIRAIE」 https://3kumiraie.jp/rent/285
募集状況 :入居申込受付中(満室になり次第終了)
◆「HAN環境・建築設計事務所」について https://www.han-arc.com/
自然エネルギーを利用し建物の快適性を高めるパッシブデザインの視点より、近隣環境・微気候など敷地の特性を広く深く読み取り計画に取り入れることより、住まい手の健康やサステナビリティに配慮した建築の設計をコンセプトとする建築設計事務所。集合住宅・施設では敷地のポテンシャルを生かし、長期にわたり魅力的で収益性の高い建物にすることを大切にしています。都市のストックとして長期的視野を持つ質の高い建物を設計する事より、周辺敷地の住環境(気候・景観)の向上を目指すと共に、建物のライフサイクルコストの削減、長寿命化、省エネルギー化、自然素材や再生材の採用等、地域生態系への負荷の低減などの取り組みを行い、魅力的で持続性のある建物を創り上げていきます。

◆株式会社フェイスネットワークについて https://faithnetwork.co.jp
住みたい街として人気の東京 城南3区エリア(世田谷区、目黒区、渋谷区)を中心とした、主に新築一棟RCマンションによる不動産投資支援事業を展開。土地の仕入・設計・施工・物件販売から賃貸の入居者募集・物件管理に至るまで、全てを自社で管理するワンストップサービスを提供。独自ブランド「GranDuo(グランデュオ)」を展開している。現在までに合計250棟以上の新築一棟マンションをプロデュースし、城南3区エリアでの新築一棟RCマンション竣工棟数は No.1。((株)建設データバンクのデータを基に自社調べ (2024年9月末時点))
投資用不動産の活用を通じてオーナー様の夢の実現をサポートするとともに、デザインと居住性を両立させたマンション開発を通じて、城南3区エリアでの入居者様の理想のライフスタイルを叶え続けている。

住所 :東京都渋谷区千駄ヶ谷3-2-1 FaithBldg.
代表者 :代表取締役社長 蜂谷 二郎
事業内容 :不動産業/建設業/一級建築士事務所
証券コード:東証スタンダード市場3489
この銘柄の最新ニュース
フェイスNWのニュース一覧- 不動産投資支援事業を展開するフェイスネットワーク 緑を通じて、人と建物と街を結ぶ賃貸マンション『GranDuo(グランデュオ)千歳烏山』が完成! 2025/11/28
- 自社開発物件「GranDuo千歳烏山」完成に関するお知らせ 2025/11/28
- 出来高変化率ランキング(14時台)~リンクバル、ニッケなどがランクイン 2025/11/25
- 出来高変化率ランキング(13時台)~ミタチ、板硝子などがランクイン 2025/11/25
- 不動産投資支援事業を展開するフェイスネットワーク「GranDuo梅ヶ丘」でZEH-M Orientedを取得 環境に配慮した投資用新築一棟RCマンション開発を推進 2025/11/21
マーケットニュース
- 大復活の拍動、10年超ぶり最高益へ突き進む「覚醒する5銘柄」精選 <株探トップ特集> (12/08)
- 明日の株式相場に向けて=SQ週に防衛関連株がスクランブル発進 (12/08)
- NY各市場 1時台 ダウ平均は178ドル安 ナスダックもマイナス圏での推移 (12/09)
- ダウ平均は反落して始まる ナスダックは上昇=米国株オープン (12/08)
おすすめ条件でスクリーニングされた銘柄を見る
フェイスネットワークの取引履歴を振り返りませんか?
フェイスネットワークの株を取引したことがありますか?みんかぶアセットプランナーに取引口座を連携すると売買履歴をチャート上にプロットし、自分の取引を視覚的に確認することができます。
アセットプランナーの取引履歴機能とは
※アセプラを初めてご利用の場合は会員登録からお手続き下さい。